ลัดดารมย์ เพชรเกษม 69 บ้านเดี่ยวหลังใหญ่ 152.4 ตร.ว. ที่ผสานดีไซน์ Modern เข้ากับ สไตล์ Classic ได้อย่างลงตัว
ความรู้เรื่องบ้าน11/07/2020

ภาพจาก หมู่บ้าน ลัดดารมย์ เพชรเกษม 69

ภาพจาก หมู่บ้าน ลัดดารมย์ เพชรเกษม 69

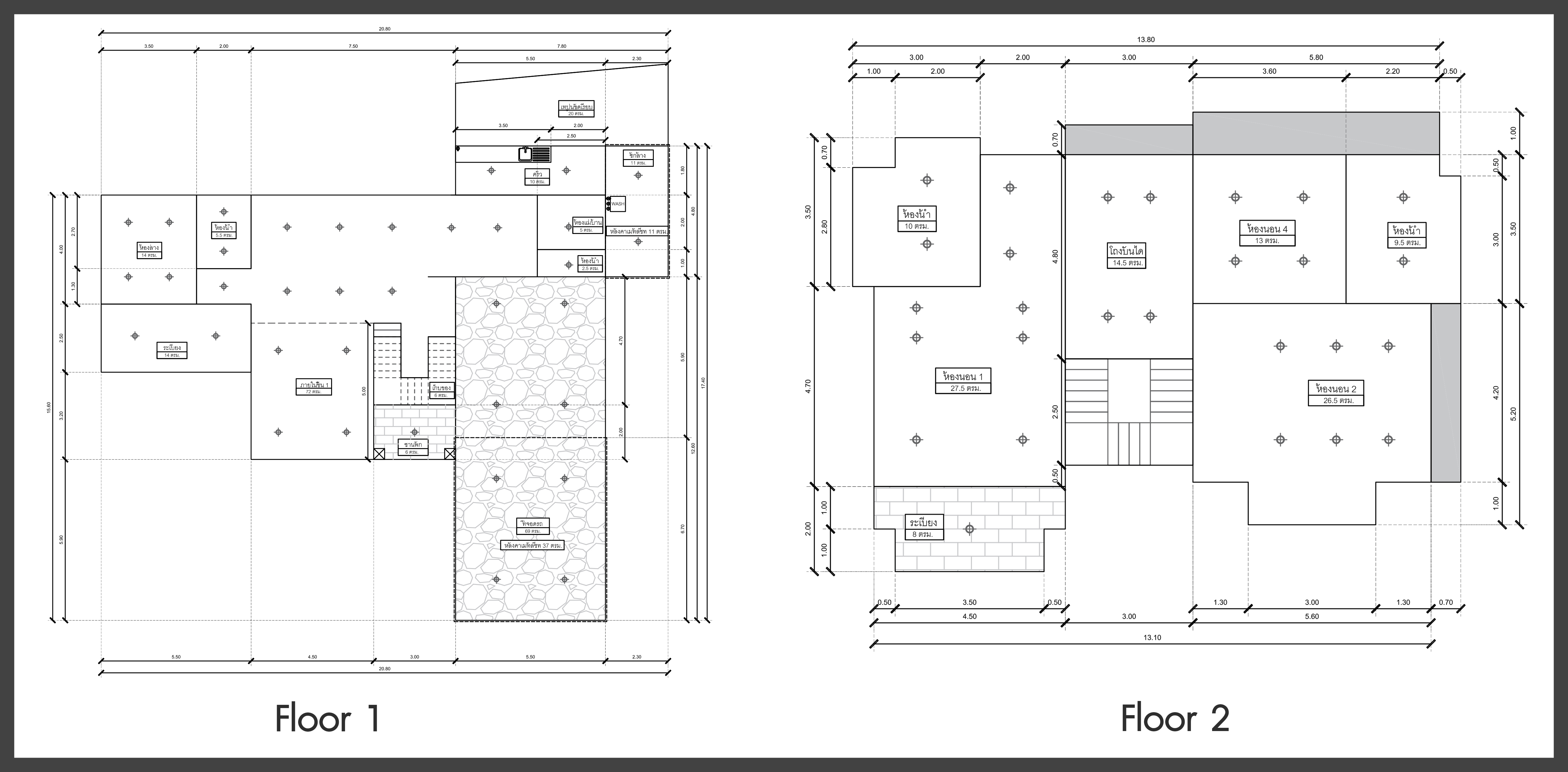
แปลนหมู่บ้าน ลัดดารมย์ เพชรเกษม 69
ความสุขแบบ “ขยาย” ในพื้นที่...ที่เป็นส่วนตัว
คฤหาสน์แปลงมุม หลังใหญ่ ตกแต่งใหม่บนเนื้อที่กว้าง 152.4 ตร.ว. ยกระดับคุณภาพชีวิต สะท้อนตัวตนด้วยดีไซน์สุด Luxury ที่ผสมผสานความ Modern เข้ากับความ Classic ได้อย่างลงตัว บนทำเลศักยภาพ เชื่อมต่อทุกการเดินทาง รายล้อมด้วยสิ่งอำนวยความสะดวก ใกล้เดอะมอลล์บางแค และจุดขึ้นทางด่วน "เพชรเกษม"
ภาพจาก หมู่บ้าน ลัดดารมย์ เพชรเกษม 69
บ้านตั้งอยู่โซนใกล้ส่วนกลาง แถมยังเป็นแปลงมุม ทำให้บรรยากาศมีความเงียบสงบ และเป็นส่วนตัว พร้อมให้คุณผ่อนคลายด้วยวิวต้นไม้ใหญ่บริเวณโดยรอบ มีสเปซที่เข้าถึงธรรมชาติได้ง่าย พื้นที่บริเวณรอบบ้านมีความกว้างขวาง ให้คุณสามารถใช้ชีวิตได้อย่างอิสระ เหมาะสำหรับทุกกิจกรรมความสุขของครอบครัวในวันพักผ่อน

ภาพจาก หมู่บ้าน ลัดดารมย์ เพชรเกษม 69
นอกจากความสวยภายนอกแล้ว ถายในก็โดดเด่นไม่แพ้กันครับ เพราะบางกอก แอสเซทฯ เราใส่ใจออกแบบในส่วนของตัวบ้านให้มีความหรูหรา ผสมผสานระหว่าง 2 สไตล์ (โมเดิร์น และคลาสสิค) เพื่อตอบโจทย์คนรุ่นใหม่ และฟังก์ชั่นการใช้งานที่ให้มากกว่าที่พักอาศัย ครบครันทุกการใช้งานทั้งห้องน้ำ (คัดวัสดุเกรดพรีเมี่ยม) , เฟอร์นิเจอร์ Built-In , ห้องครัวสุดโมเดิร์น พร้อมครัวเคาน์เตอร์แบบ U-Shape สุดหรูสไตล์ยุโรป อีกทั้งยังมีครัวไทยด้านนอก รองรับการประกอบอาหารที่มีกลิ่นแรง

แปลนหมู่บ้าน ลัดดารมย์ เพชรเกษม 69
ฟังก์ชั่นคุ้มค่า! รองรับทุกการอยู่อาศัย ขยายความสุขให้กว้างขึ้น บนพื้นที่ใช้สอยที่กว่า 324 ตร.ม.
- บ้านแปลงมุม โซนใกล้ส่วนกลาง แบ่งโซนเป็นสัดส่วน
- 4 ห้องนอน 4 ห้องน้ำ
- Master bedroom มี Walk-in closet
- ห้องอเนกประสงค์ชั้นล่าง สามารถปรับเปลี่ยนเป็นโซนรับแขก หรือ Family Room
- 1 ห้องแม่บ้าน
- หน้าบ้านกว้าง จอดรถได้ถึง 4 คัน
ชมบ้านในส่วนต่างๆ แบบ VR 360 องศา ที่คุณสามารถเดินเยี่ยมชมบ้านเสมือนไปสถานที่จริง
"ลัดดารมย์ เพชรเกษม 69" เป็นบ้านตกแต่งใหม่อีกหนึ่งหลังที่มีความคุ้มค่ามากๆ ครับ เพราะเมื่อเทียบกับโครงการบ้านมือ1 หรือโครงการในทำเลเดียวกันแล้ว ถือได้ว่าคฤหาสน์หลังนี้ มีความคุ้มค่า ทั้งในส่วนของฟังก์ชั่นบ้าน พื้นที่ใช้สอย ความพร้อมอยู่ โดยเฉพาะราคา ที่หาไม่ได้อีกแล้วในย่านนี้!
สามารถดูรายละเอียดบ้านเพิ่มเติมได้ที่ (คลิก)
สำหรับผู้ที่กำลังหาซื้อบ้านพร้อมอยู่ในกรุงเทพฯ-ปริมณฑล
ผู้ที่สนใจฝากขาย บ้านมือสอง ในกรุงเทพฯ บ้านมือสองนนทบุรี และปริมณฑล
สามารถติดต่อได้ที่นี่กรอกข้อมูลบ้าน และช่องทางติดต่อกลับ >> คลิกที่นี่ <<

.jpg)